2019 yılında İzmir’in Bornova ilçesine bağlı Eğridere Mahallesi’nde meydana gelen yıkıcı heyelanın ardından mağdur olan 34 hane için yeni bir yerleşim alanı planlandı.
Afetzedelerin kalıcı konut ve sosyal donatı ihtiyaçlarını karşılamak amacıyla hazırlanan imar planı değişiklikleri, Çevre, Şehircilik ve İklim Değişikliği Bakanlığı tarafından onaylandı.
Yeni planla birlikte bölgede altyapı maliyetleri azaltılacak, konut ve ahır alanları ayrı düzenlenerek hak sahiplerinin talepleri karşılanacak.
2019’daki heyelan sonrası yeni yerleşim alanı oluşturuldu
3 Şubat 2019’da meydana gelen heyelan felaketi, Eğridere’de 34 haneyi evsiz bırakmıştı.
Afet sonrası İzmir Valiliği, 1 Nisan 2019 tarihli kararla bölgeyi “Genel Hayata Etkililik” kapsamına aldı.
Daha sonra 29 Haziran 2019 tarihli Cumhurbaşkanlığı Kararı ile mahalle, “Afete Maruz Bölge” ilan edildi.
Bu gelişmeler üzerine 7269 sayılı Afetler Kanunu kapsamında afetzedeler için yeni bir yerleşim alanı belirlenmesi zorunlu hale geldi.
Yeni yerleşim alanı Hazine mülkiyetindeki arazide
Yeni alan, mevcut yerleşimin doğusundaki 503 numaralı mera vasıflı Hazine arazisi üzerinde seçildi.
Toplam 80.436,91 metrekarelik bu alan, İzmir İl Mera Komisyonu’nun 30 Temmuz 2019 tarihli kararıyla mera vasfından çıkarıldı ve AFAD’a tahsis edildi.
Daha sonra 573 numaralı parsel olarak Hazine adına tescil edilen bölge, AFAD’ın yer seçimi protokolü ile onaylanarak toplamda 88.055 metrekareye ulaştı.
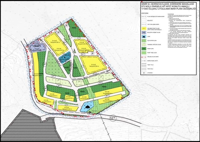
Yeni imar planıyla maliyetler düşecek, sosyal alanlar artacak
İlk etapta hazırlanan planlarda arazinin eğimli yapısı, altyapı maliyetlerini artırmış; ayrıca ahır alanlarının konut bölgeleri içinde olması hak sahiplerinin tepkisine yol açmıştı.
Bu sorunların çözümü için Uğur Bayrak Şehir Planlama tarafından hazırlanan yeni plan değişikliği, hem maliyetleri azaltacak hem de hayvancılıkla geçinen vatandaşlara uygun düzenlemeler getirecek şekilde revize edildi.
Bakanlık onay verdi: Yeşil alanlar artırıldı, yoğunluk azaltıldı
3 Kasım 2025 tarihli ve 13963842 sayılı Bakanlık yazısıyla, 3194 sayılı İmar Kanunu Ek-11 Maddesi uyarınca plan değişiklikleri onaylandı.
Yeni plan; 1/5.000 ölçekli Nazım İmar Planı ve 1/1.000 ölçekli Uygulama İmar Planı değişikliklerini kapsıyor.
-
Kentsel çalışma alanları %65’ten %59’a düşürüldü
-
Yeşil alan oranı %8’den %10’a çıkarıldı
-
Konutlarda emsal 0.30, kat yüksekliği 3 kat
-
Ahırlarda emsal 0.20, kat yüksekliği 1 kat
-
Nüfus projeksiyonu: 120 kişi
Ayrıca ulaşım ağları güçlendirildi, teraslama tekniğiyle altyapı maliyetleri %30 azaldı.
Afetzedeler için yeni bir başlangıç
Yeni plan, kalıcı konutlar, ayrı ahır alanları, eğitim ve sağlık tesisleri, rekreasyon alanları gibi sosyal donatılarıyla afetzedelere güvenli ve sürdürülebilir bir yaşam alanı sağlayacak.
Eğridere Mahallesi, hem afet sonrası yeniden yapılanma hem de kırsal kalkınma açısından örnek bir proje olarak değerlendiriliyor.




